Vierasmaja Bryton 18,5 m²
Monthly payment from €125.31 / 60 months
Price range: €4,799.00 through €6,299.00
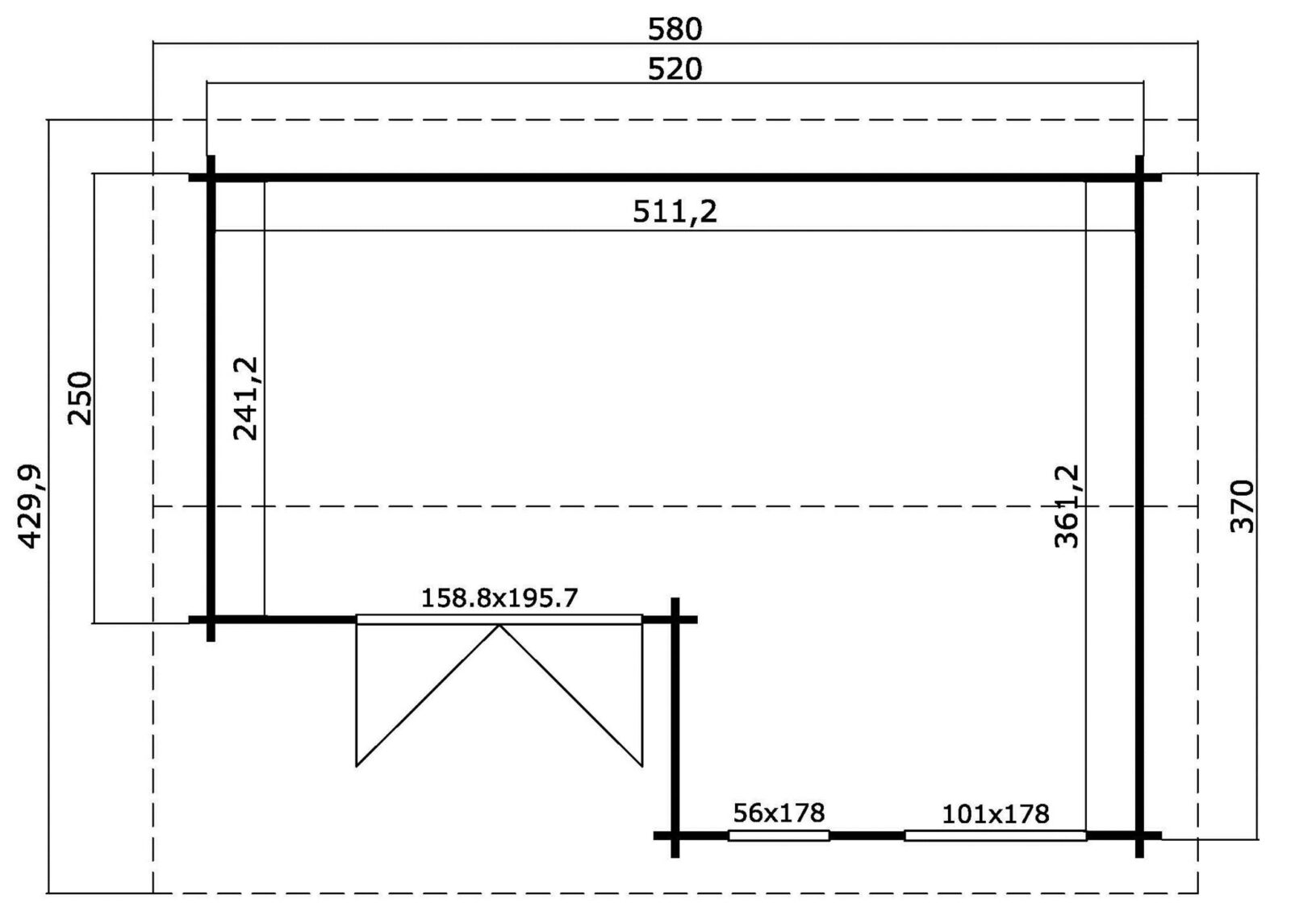
Ulkoseinämitat: 520 x 370 cm. Harjakorkeus 251 cm, räystäskorkeus 211 cm.
- 44 mm höylähirsirakenne tuulitapeilla (tilauksesta myös 70 mm) ja myrskynvahvistuksilla
- pontatut lattia- ja kattolaudat 18 x 90 mm
- painekyllästetyt lattianiskat 45 x 45 mm ja terassilaudat 19 x 90 mm
-
katon pinta-ala 26 m2 , kaltevuus 12°, etulippa 30 cm, kattopalkit 44 x 140 mm
- sylinterilukollinen ovi lämpölasilla 159 x 196 cm
- ikkunat lämpölaseilla avattava 56 x 178 cm ja kiinteä 101 x 178 cm; alumiinitippalistat
- 5 vuoden tehtaan takuu
- kiinnikkeet ja kasausohje
- tilauksesta tehdasmaalattuna +1500€(4 vakioväriä)
- kattohuopa tai palahuopa lisähintaan (tarvittava määrä 3 rll tai 11 pkt)
- sateentiivis rahtipakkaus
- tehty Eestissä
Rahti alkaen 699€ (Uusimaa).
Asennusvideo:
- Lisätiedot
- Brand
Lisätiedot
| Paino | 1500 kg (kilogramma) |
|---|---|
| Mitat | 630 × 118 × 66 cm (senttimetri) |
| Pinta-ala m2 | |
| Seinän paksuus (mm) | |
| Väri | |
| Toimitamme | |
| Varasto | |
| Takuu | |
| Toimituskulut |








































