huvitav
ALEAiamaja-kodukontor Doorset3 18,9 m²
Kuumakse al. €104.63 / 60 kuud
Price range: €3,670.00 through €5,170.00
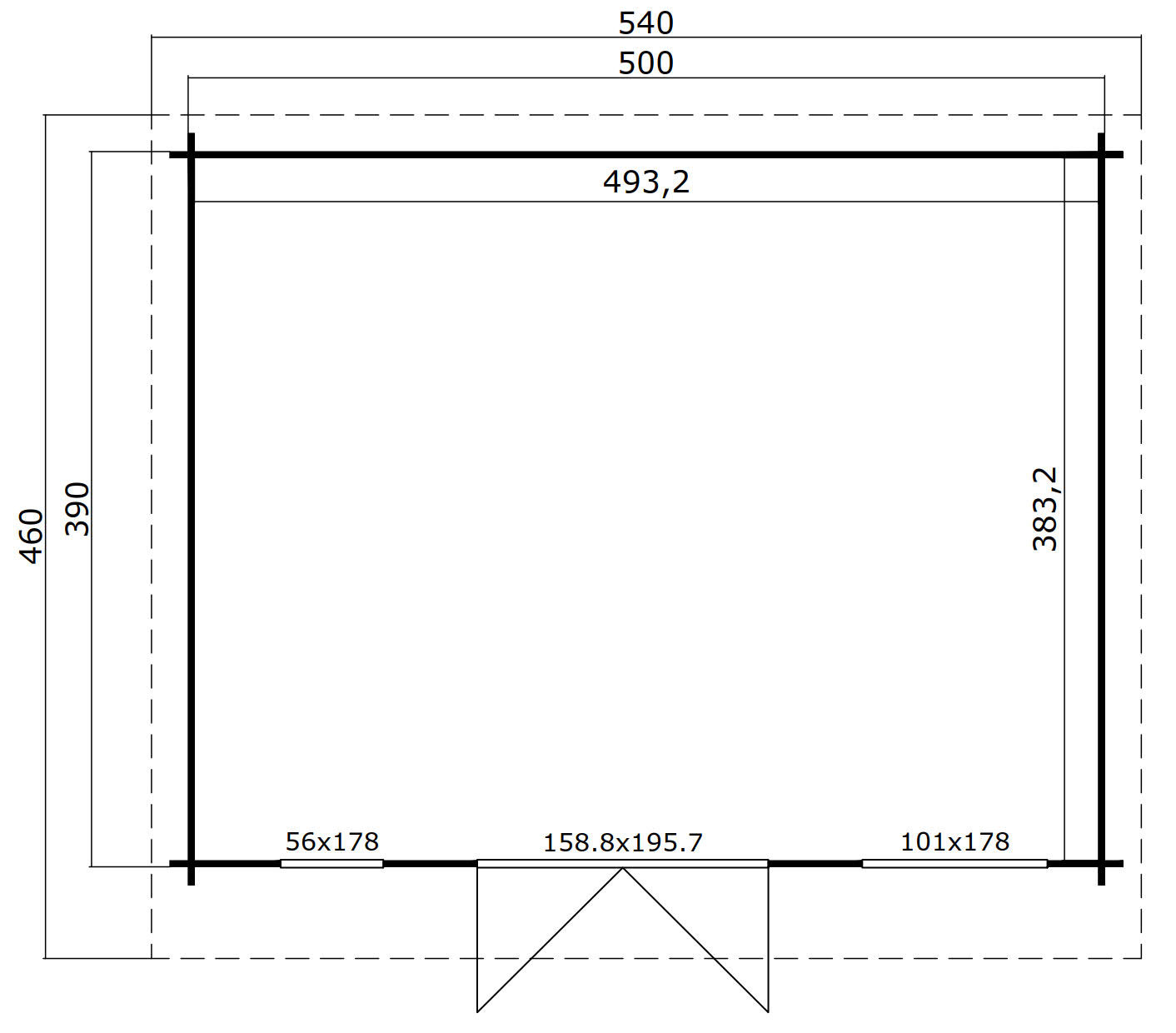
Välismõõdud: 500 x 390 cm. Seina kõrgused: 239 ja 211 cm.
- tuuletapiga freespalk 34 mm
- punnitud põranda- ja katuselaudis 18mm, immutatud alusraam
- uks pakettaknaga 159 x 196 cm
- kaldpööratavad alumiiniumist tilganinadega pakettaknad
56 x 178 ja 101 x 178 cm
- katus 3,4°/25 m2, räästa sügavus ees 50 cm
- kinnitusvahendid ja juhend
- lisahinnaga: väljast värvituna(loe alt) 1500€
- Eesti toode
- ilmastikukindel pakend
- tehase garantii 5 aastat
Vedu mandril tellijapoolse mahalaadimisega 180€ või kraana-autoga 350€(suursaartele vastavalt 280€ ja 590€).
Küsi ka paigaldust!
- Kirjeldus
- Lisainfo
Kirjeldus
Värvimise kirjeldus:
Sein värvitakse 3-st küljest, ka punnsooned. 4 standardvärvi: rootsi punane, süsihall, helehall, roheline. Suuri sisepindu ei värvita. Maja nurgad on värvitud igast küljest.
➢ Põranda- ja laelauad ning pärlinid jäävad värvimata.
➢ Aknad ja uksed värvitakse valgeks igast küljest.
➢ Kõik välised liistud (viilulauad ja liistud) värvitakse valgeks.
➢ Kvaliteetme värv tuntud saksa ettevõttelt OSMO kantakse 2 kihti.
Lisainfo
| Värv | |
|---|---|
| Veame | |
| Lao asukoht | |
| Pindala m² | |
| Garantii | |
| Pakendi mõõdud |


































