huvitav
ALEAiamaja Norde 14,6 m²
Kuumakse al. €91.96 / 60 kuud
Price range: €2,990.00 through €4,490.00
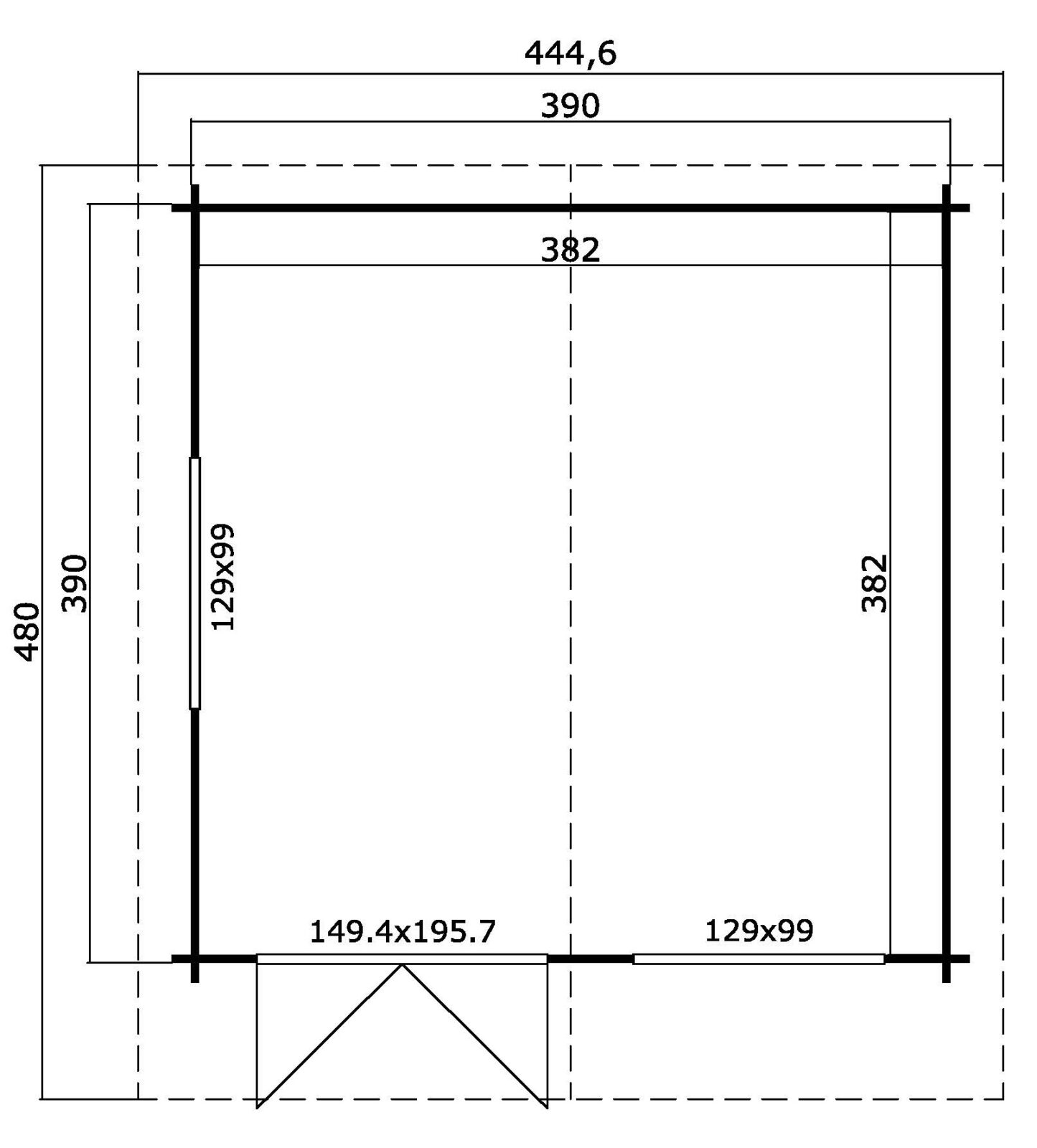
Välismõõdud: 390 x 390 cm. Harja kõrgus 257 cm, räästa kõrgus 205 cm.
- tuuletappidega freespalk 40 mm tormitugevdustega
- punnitud põranda- ja katuselauad 18 x 90 mm; süvaimmutatud alusraam 70 x 45 mm
- silinderlukuga paarisuks ühekordse klaasiga 149 x 196 cm
- kald-pöörd sisse avanevad aknad ühekordse klaasiga 129 x 99 cm
- räästas eest 70cm, katuse kalle 15°, katuse pindala 22 m2
-
kinnitusvahendid, koostejuhend
- tellitav väljast värvituna +1500€(hele-ja tumehall, punane või roheline, avatäited-liistud üleni valged; loe alt kirjeldust, tellimisaeg alates 1 kuu)
- katusepapp või sindelkatus lisahinnaga (2 rulli või 9 pakki)
- tehase garantii 5 aastat
- Eesti toode
- ilmastikukindel pakend
- peegelpildis paigaldatav
Vedu mandri Eestis tellijapoolse mahalaadimisega 180€ või kraana-autoga 350€(suursaartele vastavalt 280€ ja 590€).
Küsi ka paigaldust!
- Kirjeldus
- Lisainfo
Kirjeldus
VÄRVIMISE TEENUSE KIRJELDUS:
Sein värvitakse 3-st küljest, ka punnsooned. 4 standardvärvi: rootsi punane, süsihall, helehall, roheline. Sisepind jääb naturaalseks. Maja nurgad on värvitud igast küljest. Värvi kantakse detailidele 2 kihti. ➢ Põranda- ja laelauad ning pärlinid jäävad värvimata. ➢ Aknad ja uksed värvitakse valgeks igast küljest. ➢ Kõik välised liistud (viilulauad ja liistud) värvitakse valgeks. ➢ Kvaliteetne värv tuntud saksa tootjalt OSMO
Tellimisaeg pikem kui viimistlemata tootel.
Lisainfo
| Kaal | 1130 kg |
|---|---|
| Mõõtmed | 630 × 118 × 63 cm |
| Värv | |
| Veame | |
| Lao asukoht | |
| Pindala m² | |
| Garantii | |
| Kohale toimetamine | |
| Tellimisaeg | |
| Seina paksus (mm) |

































