Hot
Vierasmaja Rexham 13,9 m² erillisellä varastotilalla, 44 mm höylähirsi
Monthly payment from €111.01 / 60 months
€3,990.00
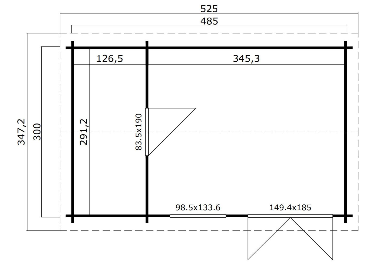
Ulkoseinämitat: 485 x 300 cm.
- 44 mm höylähirsirakenne tuulitapeilla ja myrskynvahvistuksilla
- harjakorkeus 251 cm, seinäkorkeus 211 cm
- pontatut lattia- ja kattolaudat 18 x 90 mm
- painekyllästetyt lattianiskat 70 x 45 mm
- sylinterilukolliset pariovi lämpölasilla 149 x 185 cm ja puinen ovi 84 x 185 cm(oviaukko tulee sahata sopivaan seinään); metallilla päällystetty ovikynnys, liimapuukarmit
- avattava ikkuna lämpölasilla ja tippalistalla 99 x 134 cm
- väliseinä
- katon kaltevuus 13° ja pinta-ala 19 m2
- ulkopuolelta pintakäsiteltynä +1500€(4 väriä, toimitusaika 3-4 viikkoa pitempi)
- tehtaan takuu 5 vuotta
- kiinnikkeet ja kasausohje
- säänkestävä toimituspaketti
- tehty Eestissä
- voidaan kasata peilikuvassa
Rahti alkaen 699€ (Uusimaa).
- Lisätiedot
Lisätiedot
| Paino | 1340 kg (kilogramma) |
|---|---|
| Mitat | 630 × 118 × 71 cm (senttimetri) |
| Pinta-ala m2 | |
| Seinän paksuus (mm) | |
| Toimitamme | |
| Varasto | |
| Takuu | |
| Väri | |
| Toimituskulut |









































