Saunamökki Bryton 18,5 m²
Monthly payment from €183.50 / 60 months
Price range: €7,490.00 through €8,990.00
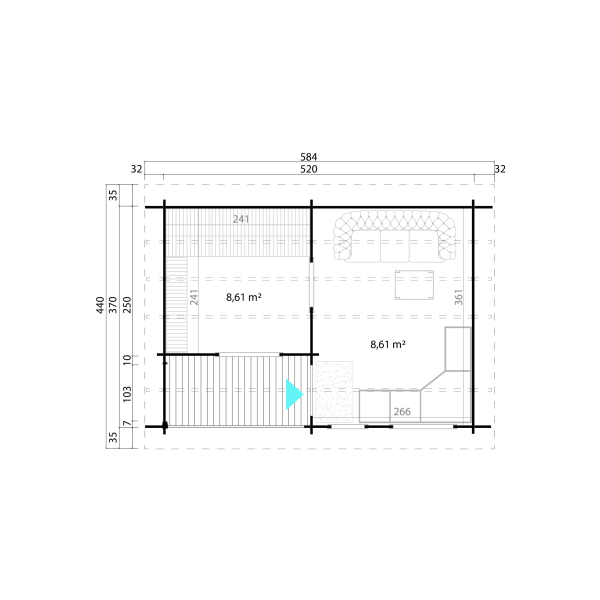
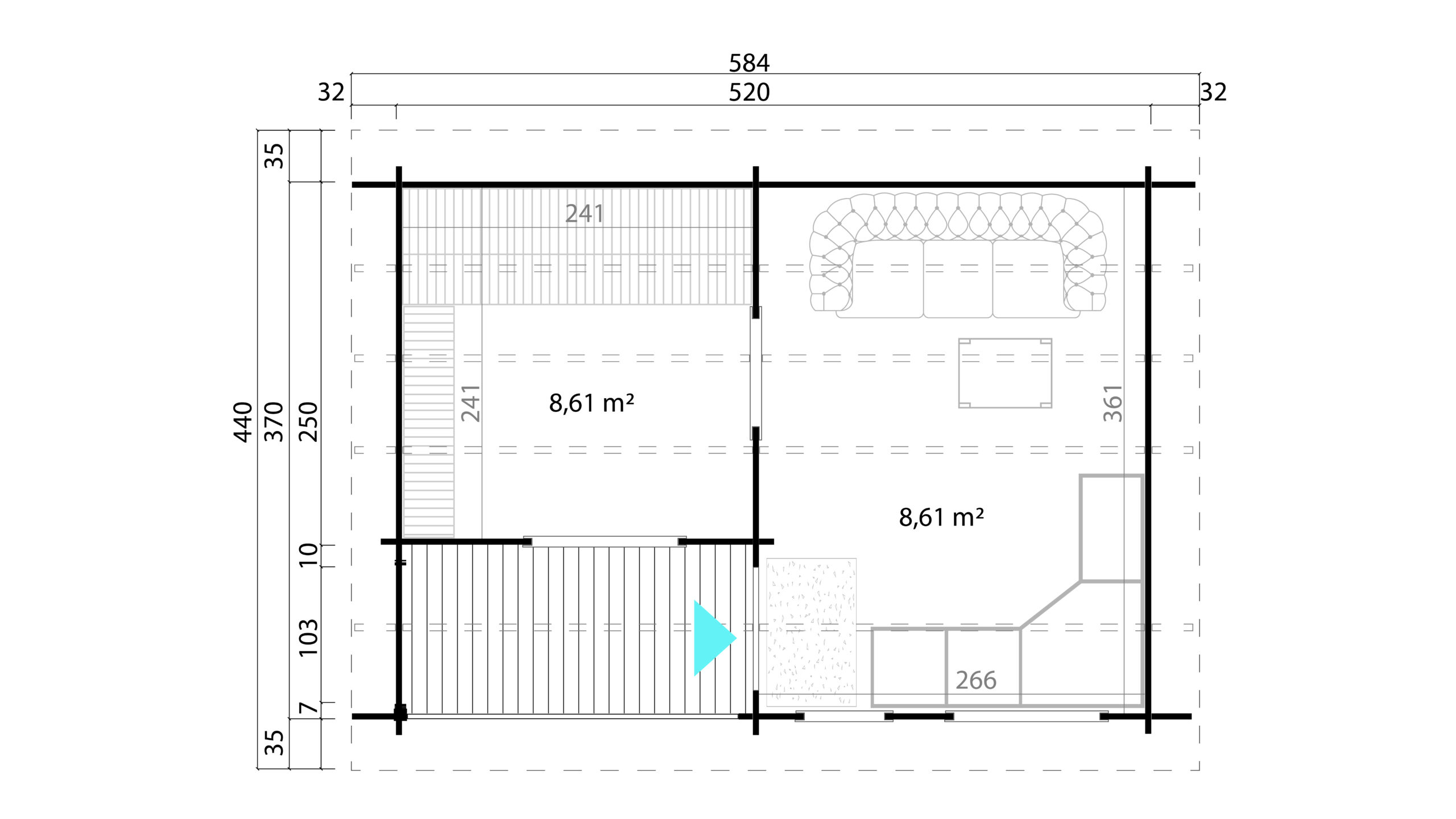
Ulkoseinämitat: 520 x 370 cm. Harjakorkeus 251 cm, räystäskorkeus 211 cm.
- 44 mm höylähirsirakenne tuulitapeilla (tilauksesta myös 70 mm) ja myrskynvahvistuksilla
- pontatut lattia- ja kattolaudat 18 x 90 mm
- painekyllästetyt lattianiskat 45 x 45 mm ja terassilaudat 19 x 90 mm
-
katon pinta-ala 26 m2 , kaltevuus 12°, etulippa 30 cm, kattopalkit 44 x 140 mm
- sylinterilukollinen ulko-ovi lämpölasilla ja löylyhuoneen ovi karkaistulla lasilla
- ikkunat lämpölaseilla 1 avattava 56 x 178 cm ja kiinteät 2 kpl 101 x 178 cm; alumiinitippalistat
- laudeet, kattolaudat ja katon lämpöeriste Finnfoam 30 mm(kiuas ei sisälly toimitukseen)
- 5 vuoden tehtaan takuu
- kiinnikkeet ja kasausohje
- tilauksesta ulkopuolelta pintakäsiteltynä +1500€(4 vakioväriä)
- kattohuopa 3 rll tai palahuopa 11 pkt lisähintaan
- säänkestävä toimituspaketti
- tehty Eestissä
Rahti alkaen 699€ (Uusimaa).
- Lisätiedot
- Brand
Lisätiedot
| Paino | 1500 kg (kilogramma) |
|---|---|
| Mitat | 630 × 118 × 66 cm (senttimetri) |
| Pinta-ala m2 | |
| Seinän paksuus (mm) | |
| Väri | |
| Toimitamme | |
| Varasto | |
| Takuu | |
| Toimituskulut |















































